Ga naar de inhoud
gees
rust in Drenthe
Impressie
Agenda
Menu
Impressie
Agenda
Huidige fotos
Funda fotos
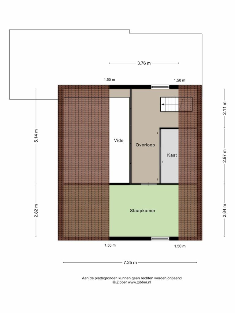
Plattegrond